<

blog_img1
SOLIPLAS
Programa
Cuarto Limpio
Àrea
T: 5,000 m2 C: 200 m2
Año
2019
Ubicación
Iztapalapa, CDMX.
Status
Anteproyecto
PRESENTACIÓN

El proyecto surge en primer lugar , por la necesidad de proporcionar las condiciones otpimas de operación y cumplimiento de las nuevas necesidades presentadas por el cliente (uso y funcionamiento), y en segudo lugar , por el deseo de generar una nueva propuesta de identidad que a través de su volumetría y envolvente presente un proyecto de cualidades optimas para su uso y a la altura de los estandares de la empresa SOLIPLAS sa de cv.

La estrategia a seguir será la de minima intervención estructural y espacial, tratando de integrarse a la edificación existente en su uso y operación. Con esta primera presentación se quiere lograr transmitir el espíritu y dirección de diseño generales para definir una linea que se pueda ir replicando a futuro en intervenciones particulares de cada espacio. 

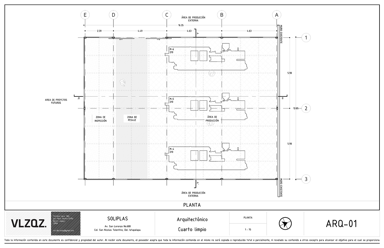
DESCRIPCIÓN

El programa arquitectónico se organiza en un solo volúmen que aislara el espacio de tres maquinas existentes para lograr las condiciones requeridas por la nom. FSSC22000 para la fabricacion del nuevo producto solicitado .  Esta propuesta solo requiere la fabricación de una envolvente autoportante y aislada por sus materiales constructivos que permita el acceso del personal , herramientas y equipo necesario para su uso adecuado de producción y mantenimiento.

ESTRUCTURA:
Secciones metálicas en columnas y trabes para generar una estructura autoportante .

ENVOLVENTE:
- Muros prefabricados del sistema MULTI MURO, panel asilante TERNIUM ARKIRIB 24/26, que permite un aislamiento de ruido y temperatura para un adecuado desempeño de las activiades a realizarse.
- Canceleria de aluminio linea española de 3 pulgadas y cristal claro de 6 mm.
- Plafón de tablaroca aisaldo con lana mineral sobre bastidor metalico.

INTERIORES:
- Piso y muros recubiertos con pintura epóxica para cumplir con normas sanitarias y de limpieza facil. - Instalaciones y luminarias electricas aparentes y de bajo consumo de tecnolgía LED.

VENTILACIÓN:
- Sistema de ventilacion natural complementado por  A/C para lograr el mínimo consumo energético (por definirse a detalle con el desarrollo de proyecto ejecutivo).

Creditos

Diseño Arquitectónico: estudio VLZQZ (Pablo Velázquez) |Colaboradores: Beatriz Leyva, Raul Hernandez, Rogelio Valdez, Jonathan Granados | Estructura: Arq. Ricardo Camacho | 

^