<

blog_img1
DARK KITCHEN
Programa
Comercial
Àrea
C: 200 m2
Año
2018
Ubicación
Bajo Puente Rio San Joaquin, CDMX.
Status
Construido
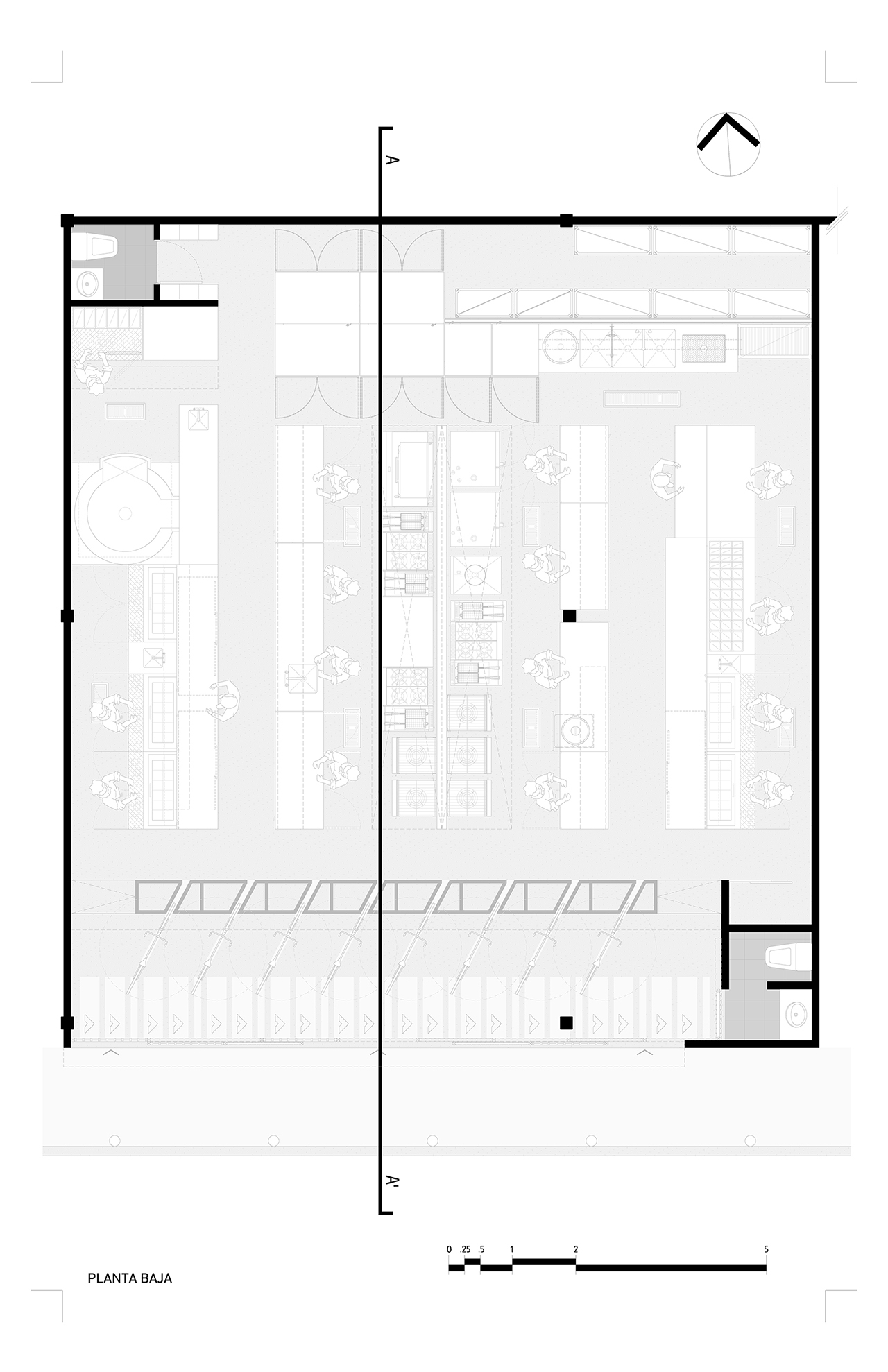
DESCRIPCIÓN

Dentro de un local de dinámica urbana en el bajo puente de Rio San Joaquín, se encuentra el proyecto que se nos encargó para resolver una cocina industrial de entrega a domicilio, donde el principal usuario serían las motocicletas y bicicletas de entrega.

El programa requería una cocina industrial que pudiera dar servicio a una serie de marcas gastronómicas muy diversas; pokes, pizzas y churrascos. Así mismo se necesitaba de un área de vestidores y lockers como de aseo y sanitarios para los usuarios externos.  Este usuario de características particulares sería el detonador de la intención de todo el diseño del local.

PROYECTO

El contexto urbano definió la tectónica e identidad del proyecto, tomando como referencia la estética industrial y su lógica de confinamiento ante entornos hostiles. Esto determino el uso de los materiales; acero, concreto aparente y block, así como de su identidad gráfica; colores y motivos de señalización vial. El programa y usuario definieron la lógica de acomodo espacial, donde el vehículo (motocicleta y bicicleta) definieron las dimensiones, organización y flujos del espacio.

Creditos

Diseño Arquitectónico: estudio VLZQZ (Pablo Velázquez) | Gerencia de obra : estudio VLZQZ | Colaboradores: Beatriz Leyva, Raul Hernandez, Rogelio Valdez, Jonathan Granados | Fotografía : Rafael Gamo | 

^