<

blog_img1
CLÍNICA ANAXÁGORAS
Programa
Clìnica de consultorios
Àrea
T: 240 m2 C: 400 m2
Año
2018
Ubicación
Col. Narvarte, CDMX.
Status
Construido
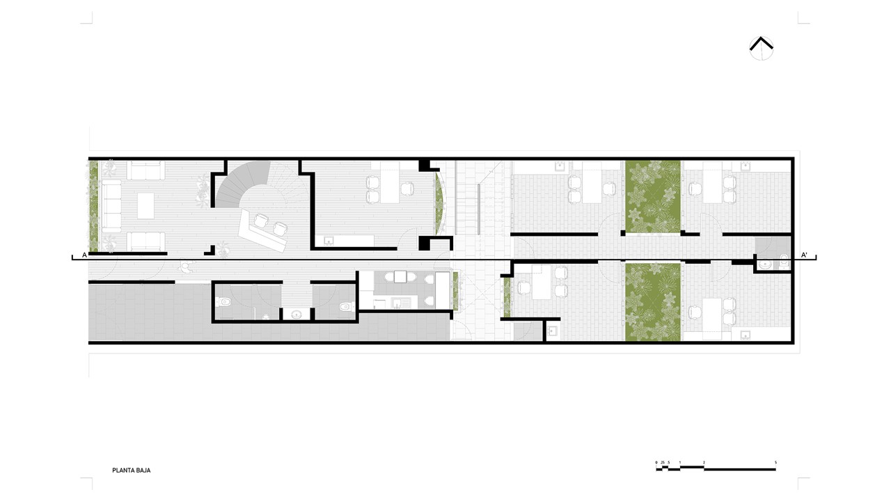
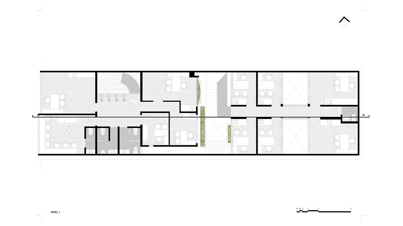
DESCRIPCIÓN

Dentro de una casona típica de la colonia Narvarte se nos presentó la tarea de intervenir los espacios existentes y ampliar la construcción para alojar un nuevo programa de una clínica de consultorios de primer nivel de atención. La premisa principal de intervención no solo fue la de respetar las características originales de la casa sino de recuperar y exaltar sus elementos estéticos y espaciales.

PROYECTO

La construcción original, aunque en buen estado requería de un mantenimiento general y con el nuevo programa se hicieron trabajos de adecuación y reorganización de espacios. Por otro lado, en el área interior, donde existía una pequeña construcción de 1 nivel se amplió y demolió para alojar un nuevo volumen de 2 niveles. Este nuevo volumen se diseñó con criterios y parámetros para su nuevo uso y con una línea estética que dialogara con la casa original. En este, la principal operación fue demoler para generar dos patios que permitieran una ventilación e iluminación adecuada para los nuevos consultorios.

Los materiales propuestos fueron elegidos por su afinidad con la casa original y por su expresión simple y contundente. Herrerías y cancelerías en color negro, aplanados blancos, vitro block y madera. El mobiliario también fue diseñado exprofeso para los consultorios y áreas comunes por nuestro equipo.

 

Creditos

Diseño Arquitectónico: estudio VLZQZ (Pablo Velázquez) | Gerencia de Obra:  estudio VLZQZ | Colaboradores: Beatriz Leyva, Raul Hernandez, Rogelio Valdez, Jonathan Granados | Estructura: Arq. Ricardo Camacho | Fotografía : Paulina Campos |

^