<

blog_img1
CASA FLORIDA
Programa
Vivienda
Àrea
T: 200 m2 C: 350 m2
Año
2019
Ubicación
Coyoacán, CDMX.
Status
Construido
DESCRIPCIÓN

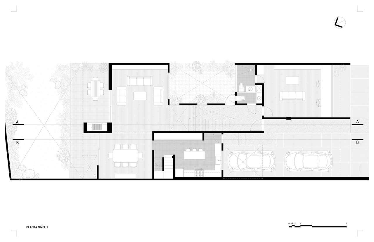
Ubicado en la colonia de Santa Catarina, Coyoacán dentro de un conjunto de cuatro casas duplex y abarcando un área privada de 200 m2, con una orientación oriente poniente, se encuentra nuestra vivienda. El esquema de la casa con un patio interno y un jardín trasero iluminan y ventilan la mayor parte de una casa en dos niveles y con una línea de diseño con guiños de estilo moderno.

La casa se desplanta compartiendo paredes entre una colindancia y la casa contigua del condominio. Se desarrolla en dos plantas con el área social en planta baja y los cuatro dormitorios en planta alta. La casa, de cierta introspección se abre hacia sus patios internos y un jardín trasero que permite extender el espacio de sala y comedor a través de una terraza amplia. De una arquitectura típica de la época moderna tardía sus espacios se presentan con alturas bajas que enfatizan la horizontalidad y conexión con sus espacios exteriores.

PROYECTO

El programa original de la casa será respetado junto con su estructura y estética general. Los trabajos de remodelación serán de acabados, cancelerías, herrerías y adecuaciones en las áreas de baño que actualmente son insuficientes. La estrategia de intervención de la planta existente fue con acciones puntuales de acupuntura que renovaran la estética y nivel de confort. La idea central fue la de conservar la estructura principal y transformar el espacio para cumplir con los nuevos requerimientos del cliente. El mayor gesto tectónico del proyecto se expresa en los muros de acceso y vestíbulo a doble altura de acceso y muro colindante que se abre al patio. Por su contexto, aquí se eligió al ladrillo de barro cocido como elemento de recubrimiento vertical por sus cualidades plásticas.

Creditos

Diseño Arquitectónico: estudio VLZQZ (Pablo Velázquez) | Supervisión de obra : estudio VLZQZ | Colaboradores: Beatriz Leyva, Raul Hernandez, Rogelio Valdez, Jonathan Granados |

^