<

blog_img1
TONALÁ
Programa
Vivienda
Àrea
T: 240 m2 C: 1050 m2
Año
2016
Ubicación
Col. Roma, CDMX
Status
Construido
DESCRPICIÓN

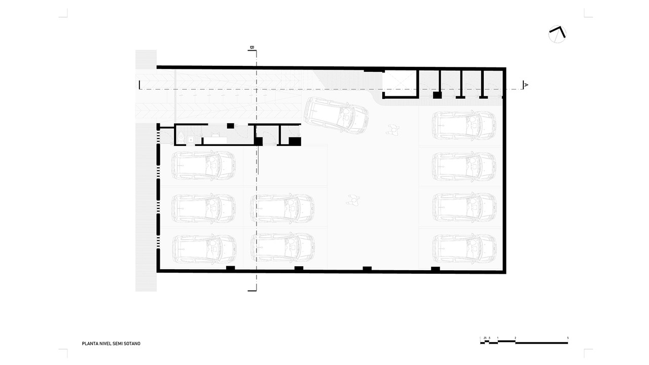
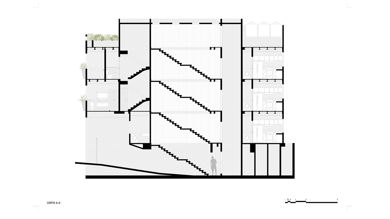
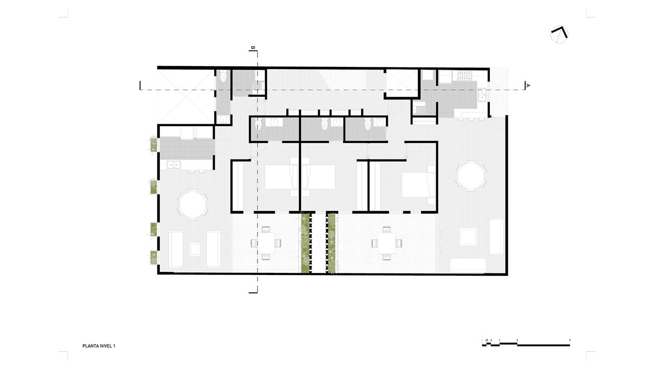
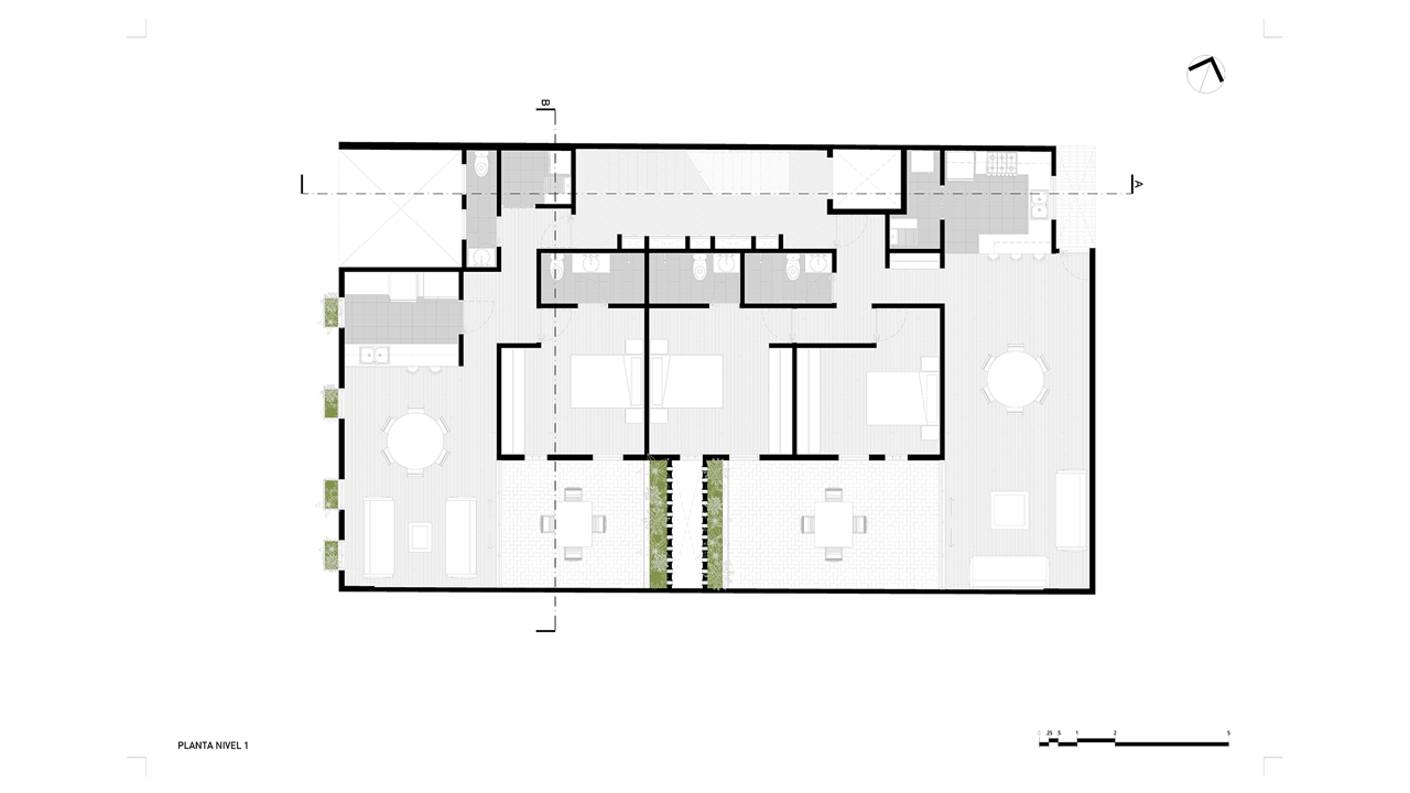
Ubicado en la colonia Roma Sur en un lote compacto de 240 metros cuadrados, de proporciones rectangulares y de orientación oriente poniente, se desplanta la construcción de un inmueble de cinco unidades de vivienda en tres niveles.

Dentro de un contexto heterogéneo en cuanto a alturas y usos de suelo, se plantea un proyecto que respeta la continuidad del  paramento urbano a través de un plano monolítico de concreto pigmentado en rojo. Los parámetros y restricciones de  programa así como de emplazamiento del predio resultaron en un esquema de organización espacial de un volumen entorno a un patio central que proporciona luz y aire.


PROYECTO

Cinco viviendas componen el interior de este volumen a través de cuatro tipologías distintas. Esta multiplicidad de variantes permite al inmueble tener un uso dinámico de la vivienda, presentando una propuesta adaptable a distintos estilos de vida. El proyecto apuesta por una intensa relación con el exterior, donde patios y terrazas se extienden para maximizar el uso del espacio. La orientación del patio central permite el máximo asoleamiento de recámaras hacia el sur así como una buena ventilación para todo el conjunto. La materialidad del proyecto se muestra a través de la claridad de expresión del sistema constructivo (muros y losas) y del uso de acabados aparentes, concreto, block de cemento y tabique extruido.

Creditos

Diseño Arquitectónico: estudio VLZQZ (Pablo Velázquez) | Gerencia de obra : estudio VLZQZ | Colaboradores: Beatariz Leyva, Raul Hernandez, Rogelio Valdez, Jonathan Granados |  Estructura: Ing. Fermin Iracheta, Arq. Ricardo Camacho | Fotografía : Rafael Gamo | Desarrollo Inmobiliario: Valor Agregado Territorial | 

^