<

blog_img1
CHICHEN-ITZÁ
Programa
Vivienda
Àrea
T: 320 m2 C: 1350 m2
Año
2018
Ubicación
Letra Valle, CDMX.
Status
Construido
DESCRPICIÓN

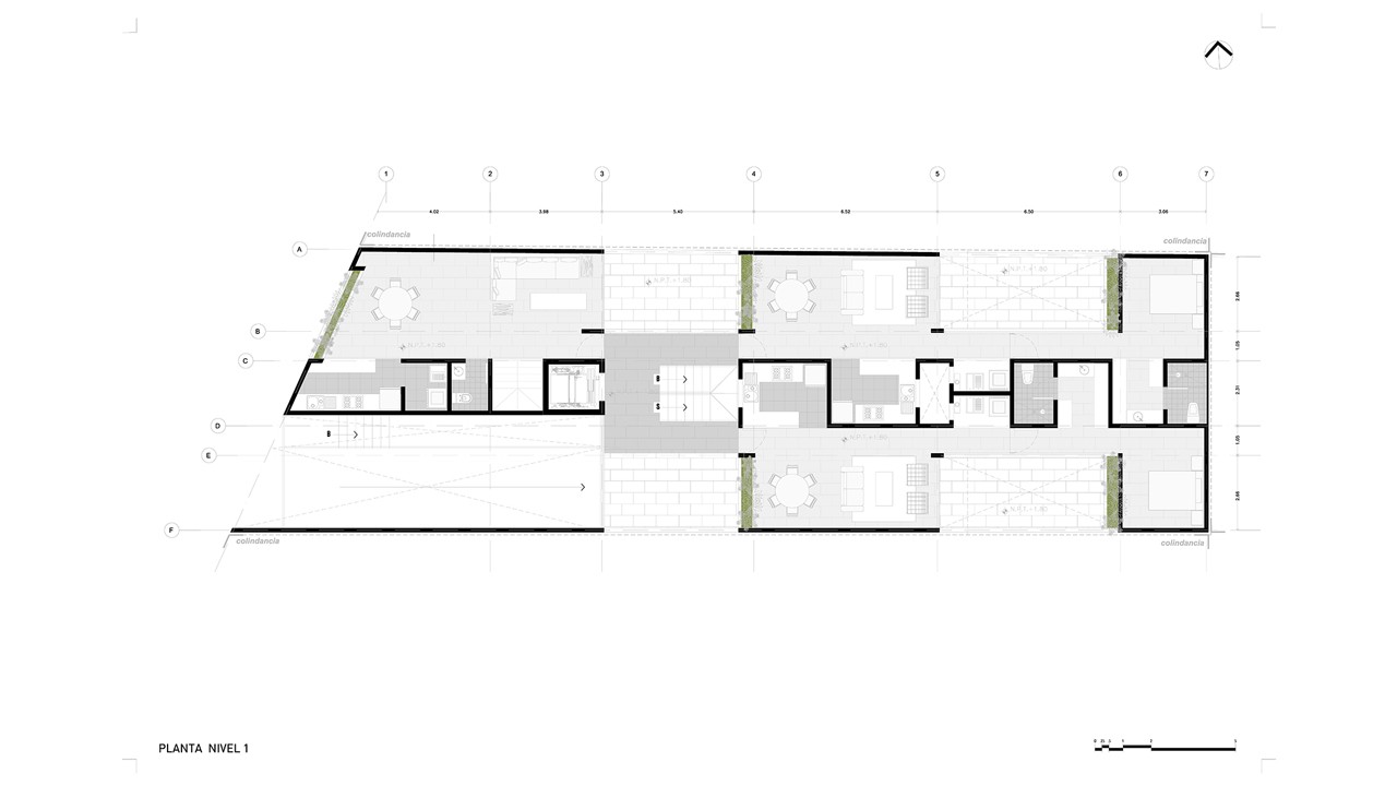
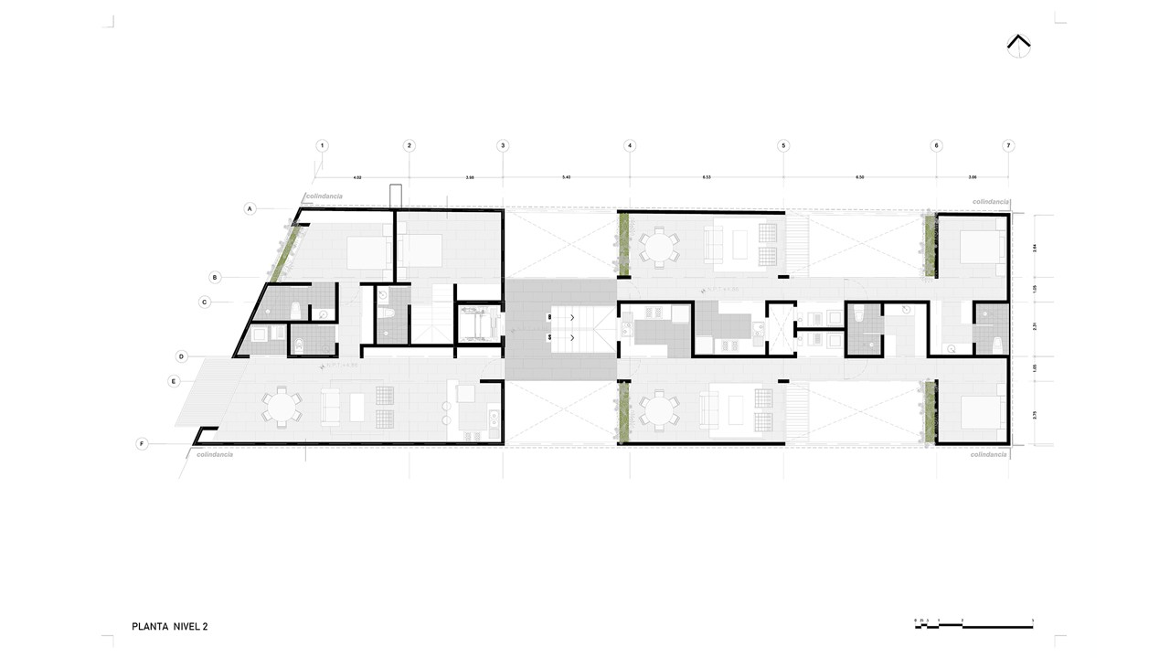
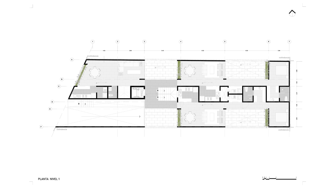
El proyecto de 12 departamentos de vivienda se ubica en la colonia Letrán Valle a un costado de la glorieta del ¨RIVIERA¨. Se encuentra en un lote de medianeras de 350 m2 sobre una calle de dimensiones generosas y jacarandas de temporada. Por sus condiciones urbanas y de conectividad el proyecto apuesta por una densificación de la zona ofreciendo una variedad de tipologiás para responder a las necesidades de la población local.

PROYECTO

La proporción alargada del predio presenta el reto de meter la mayor densidad posible sin comprometer la calidad espacial y su funcionamiento. Por tal motivo y para ofrecer una variedad de tipologías que respondan al mercado se desarrolló una propuesta en 3 volúmenes que se encuentran apartados por medio de 4 patios que ventilan e iluminan el espacio.

Estos patios y terrazas se integran directamente con el interior de cada departamento. El diseño de estos espacios resulta clave, pues serán una extensión del interior habitacional, patios y terrazas reciben un tratamiento de alta calidad para lograr una máxima experiencia espacial.

Los materiales seleccionados, la volumetría, así como la relación de sólido vacío apuestan por una arquitectura generosa y de trazos simples que se integra al entorno urbano.

Creditos

Diseño Arquitectónico: estudio VLZQZ (Pablo Velázquez) | Colaboradores: Beatariz Leyva, Raul Hernandez, Rogelio Valdez, Jonathan Granados | Estructura: Ings. Izquierdo  | Desarrollo Inmobiliario: Izquierdo, Margolis, Velázquez | 

^