<

blog_img1
CERRADA DE LA PAZ
Programa
Vivienda
Área
T: 450 m2 C:2100 m2
Año
2012
Ubicación
Escandón, CDMX
Status
Construido
DESCRPICIÓN

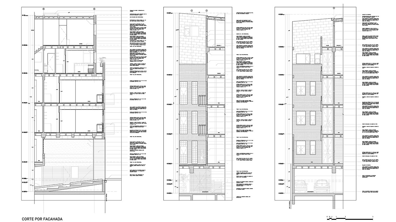
Situado en la tradicional colonia Escandón, con una ubicación estratégica por su localización urbana el proyecto se conecta con la ciudad con una amplia red de vialidades e infraestructura de transporte público. Este, se sitúa en una zona patrimonial, entre edificios catalogados y grandes árboles resultando en un sitio armónico para vivir sin aislarse de los beneficios de la vida urbana.

La propuesta apuesta por una integración al lugar, respetando la tradición constructiva y los materiales de época a través de un diseño simple que privilegia la unidad con el contexto. Se refuerza la imagen y carácter de la zona con la elección de sus materiales, volumetrías y tectónica.

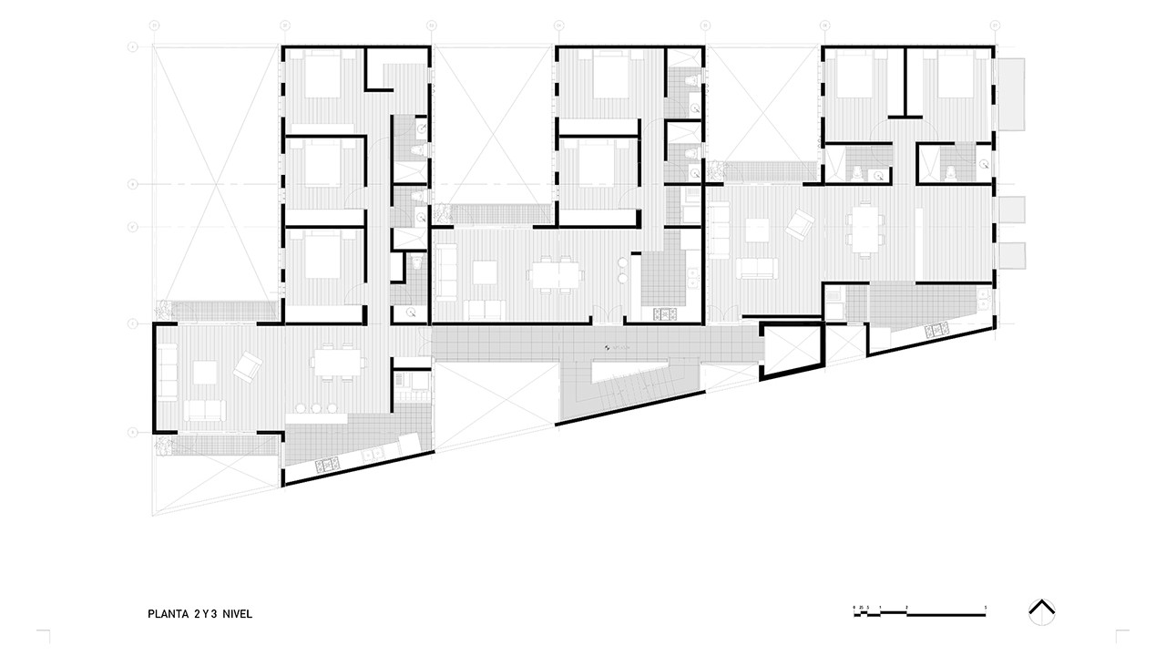
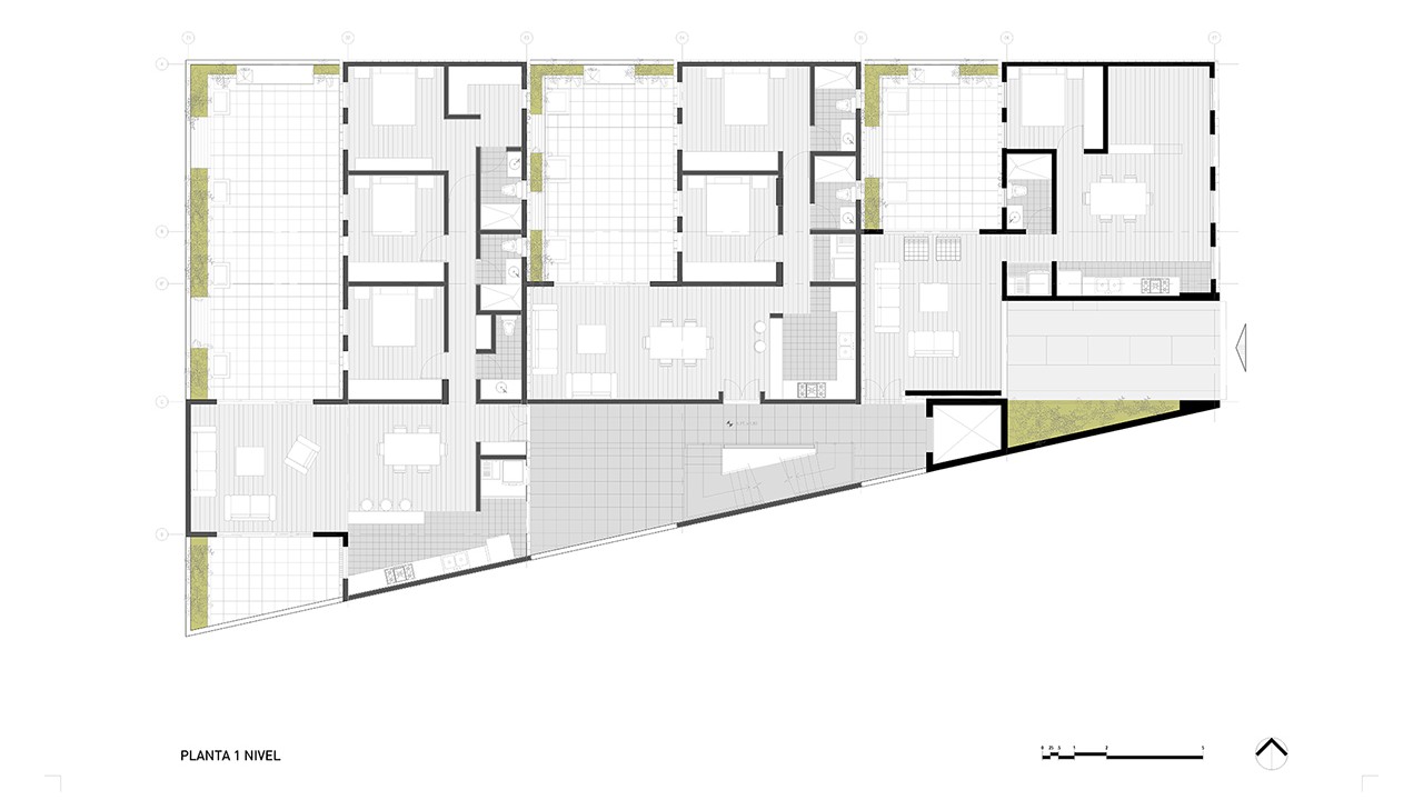
PROYECTO

El desarrollo cuenta con 12 unidades habitacionales en 5 niveles que se organizan a partir de tres patios y terrazas consecutivas que se integran directamente con el interior de cada departamento. El diseño de estos espacios resulta clave, pues serán una extensión del interior habitacional, patios y terrazas reciben un tratamiento de alta calidad para lograr una máxima experiencia espacial. Los materiales seleccionados, la volumetría así como la relación de sólido vacío apuestan por una arquitectura generosa y de trazos simples que se integra al entorno urbano.

Creditos

Diseño Arquitectónico: estudio VLZQZ (Pablo Velázquez) | Colaboradores: Jesus Rodriguez | Estructura: Ing. Juan Antonio Tonda, Arq. Ricardo Camacho | Fotografía: Diego Berruecos |  Desarrollo Inmobiliario: REDES | 

^